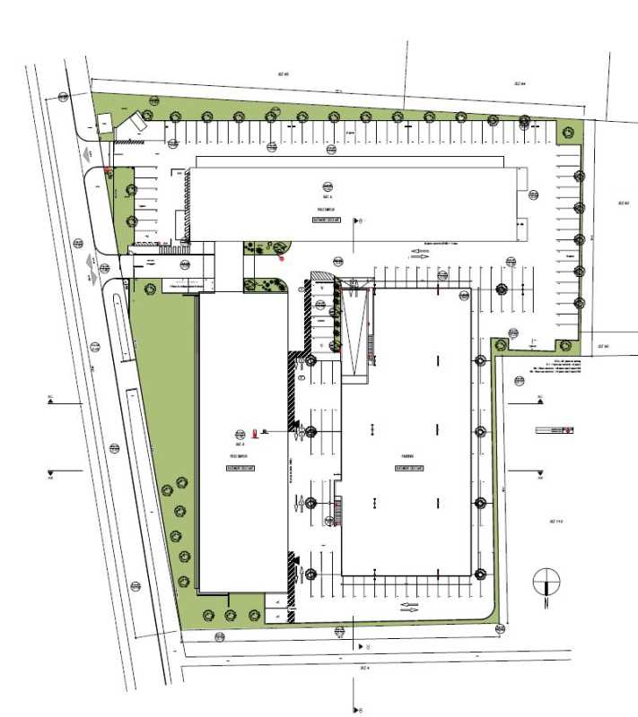
Situation et Accès
Situation
SUD
Accès
Accès rapide à la rocade A630 - sortie 26a
A proximité de la ligne n°36
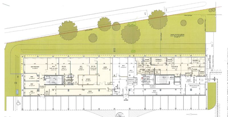
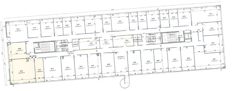
Surfaces
Diagnostics énergétiques
Nos annonces similaires
A propos
RCG Bordeaux, conseil en immobilier d’entreprise, vous accompagne à Bordeaux et en Nouvelle-Aquitaine dans votre recherche de bureaux, locaux d’activités, entrepôts, logistique, commerces, terrains, clés en mains et vous propose une offre complète de services adaptés à votre projet : conseil, commercialisation, investissement, développement…
RCG se positionne sur le marché immobilier d’entreprise comme conseiller stratégique à forte valeur ajoutée pour ses clients. Au carrefour des intérêts des différents protagonistes : entreprise, association, commerçant individuel, propriétaire, investisseur, promoteur, aménageur, collectivité territoriale, RCG se consacre exclusivement au conseil sur mesure auprès de ses clients et les accompagne dans leurs choix stratégiques et trajectoires d’innovation.
Contact
RCG Bordeaux
107 cours Balguerie Stuttenberg
33300 BORDEAUX
RCG Bordeaux © Copyright 2022 filiale du Groupe Andrieu | Mentions légales | Politique de confidentialité | Honoraires











