À LOUER

BUREAUX AMENAGES 498 M² DIVISIBLES - BORDEAUX BASSINS A FLOT

LP1307119

  • Bureaux
  • Bordeaux 33300
  • 498 m² divisibles à partir de 227 m²
  • Loyer : 186,34€ m²/an/HT/HC
  • Honoraires : 15% HT du loyer annuel HT/HC à la charge du Preneur
  • Disponibilité : Après accord

Description

Face au Bassin à flot n°2 sur l'axe du Pont Chaban Delmas et avec accès direct à la rocade, au sein d'un immeuble de bureaux BREEAM Very Good - RT2012 livré en 2021, RCG vous propose à la location une surface aménagée de 498 m² divisible en deux lots au R+5 .

Grande terrasse commune et arborée avec potager et tables d'extérieur au 1er étage.

Commerces en pied d'immeuble, parking public Indigo situé sur Immeuble voisin Cap Comorin.

. Immeuble récent (2021)
. Certification BREEAM very good RT 2012
. Ascenseurs
. ERP 5ème catégorie type W
. Hall d'accueil aménagé
. Grande terrasse commune au R+1
. Hauteur sous plafond : 2.70 m
. Menuiseries extérieures en aluminium
. Cloisonnement amovible semi-vitré
. Moquette
. Faux plafond
. Eclairage led
. Baie de brassage / câblage RJ45
. Local vélos / douche au rdc
. Effectifs 1 personne / 12 m² SUBL
. Parking public Indigo situé sur l'immeuble Cap Comorin

Situation et Accès

Situation

BORDEAUX

Accès

  • à proximité des lignes n°7/32
  • à proximité de la ligne B - station "Cité du Vin"
  • Accès rapide Rocade Sortie n°4
  • Accès Pont Chaban Delmas - Rive Droite

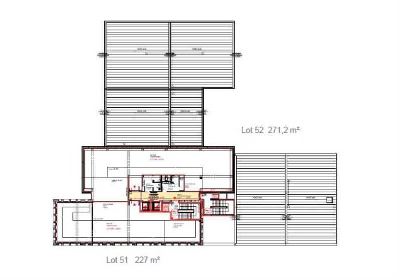
Surfaces

Bat.
Etage
Surface
Nature
Disponibilité
Bat : 2
Etage : 5ème étage
Surface : 227 m²
Nature : Bureaux
Disponibilité : Après accord
Bat : 2
Etage : 5ème étage
Surface : 271 m²
Nature : Bureaux
Disponibilité : Après accord

Diagnostics énergétiques

consommation énergétique
En cours
émission de gaz à effet de serre
En cours

Nos annonces similaires

A propos

RCG Bordeaux, conseil en immobilier d’entreprise, vous accompagne à Bordeaux et en Nouvelle-Aquitaine dans votre recherche de bureaux, locaux d’activités, entrepôts, logistique, commerces, terrains, clés en mains et vous propose une offre complète de services adaptés à votre projet : conseil, commercialisation, investissement, développement…

RCG se positionne sur le marché immobilier d’entreprise comme conseiller stratégique à forte valeur ajoutée pour ses clients. Au carrefour des intérêts des différents protagonistes : entreprise, association, commerçant individuel, propriétaire, investisseur, promoteur, aménageur, collectivité territoriale, RCG se consacre exclusivement au conseil sur mesure auprès de ses clients et les accompagne dans leurs choix stratégiques et trajectoires d’innovation.

Contact

RCG Bordeaux
107 cours Balguerie Stuttenberg
33300 BORDEAUX

05 56 79 00 00

bordeaux@rcgfrance.com

RCG Bordeaux © Copyright 2022 filiale du Groupe Andrieu | Mentions légales | Politique de confidentialité | Honoraires